
Listed by: Corcoran Classic Living (706) 202-4621
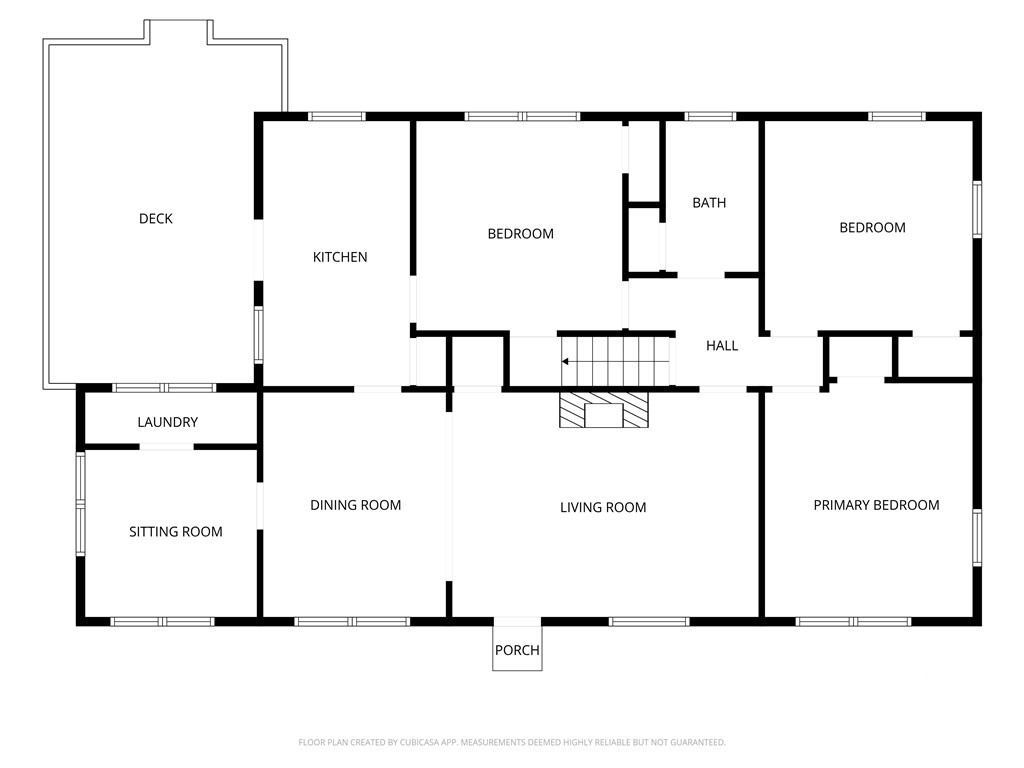
Welcome to 265 N Church Street, a charming 1955 brick ranch located in the heart of whimsical Winterville, just a block to the Winterville Library, Pittard Park, Firefly Trail and more! With 1400 sq ft and 3 bedrooms/1 bath, this cozy home also features a spacious wooden deck and a large detached workshop/studio space, complete with power, a mini-split HVAC system and a roll-up loading door. The 1+ acre fenced lot is amazing and features both a large grassed yard and wooded area, with plenty of room for gardening or chickens. Hardwood floors run throughout most of the home, with a brick fireplace and arched opening framing the living and dining room. There is small office room located off the dining, and the attic has an integral staircase leading to it with tons of storage room and the possibility of more finished space. You can’t beat the location of this home, with sidewalk access to so many Winterville spots, including the Community Center and Art Gallery, Auditorium, Community Gardens, Marigold Market and more—plus only 7 miles to downtown Athens and the University of Georgia!
The data relating to real estate on this web site comes in part from the Internet Data Exchange program of Hive MLS (HIVE), and is updated as of Saturday, January 24th, 2026 at 09:31:15 AM. All information is deemed reliable but not guaranteed and should be independently verified. All properties are subject to prior sale, change, or withdrawal. Neither listing broker(s) nor Corcoran Classic Living shall be responsible for any typographical errors, misinformation, or misprints, and shall be held totally harmless from any damages arising from reliance upon these data. © 2026 Hive MLS (HIVE). Data last updated: Saturday, January 24th, 2026 at 09:31:15 AM.
Data services provided by IDX Broker
| Price: | $350,000 |
| Address: | 265 N Church Street |
| City: | Winterville |
| County: | Clarke |
| State: | Georgia |
| Zip Code: | 30683 |
| Subdivision: | Tract 1 2 |
| MLS: | CL343465 |
| Year Built: | 1955 |
| Acres: | 1.02 |
| Lot Square Feet: | 1.02 acres |
| Bedrooms: | 3 |
| Bathrooms: | 1 |

















































