
Listed by: Corcoran Classic Living (706) 372-1996
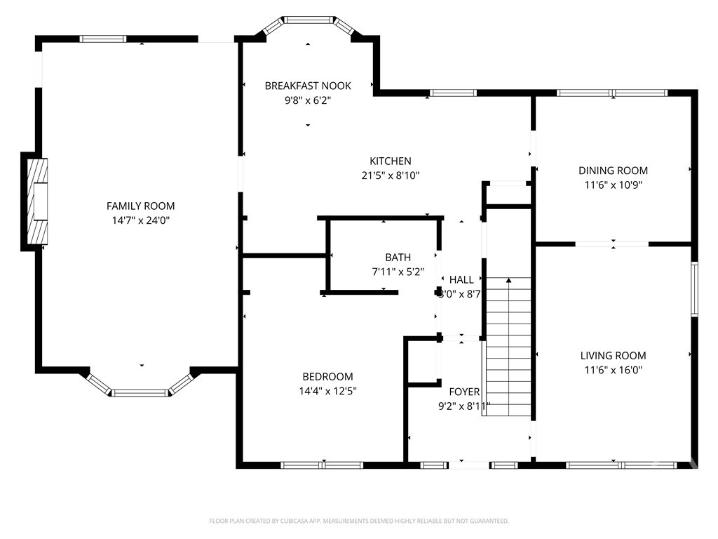
This one is for buyers who want a solid home in an established neighborhood with creative control over what it becomes. 170 Dunwoody Drive has been professionally cleaned from top to bottom, freshly painted throughout, and outfitted with new blinds giving you a liveable foundation to keep what you love or reimagine over time. Colorful bathroom tile and vintage inspired wallpaper add a hint of retro without being overwhelming, perfect for those who appreciate a home with a little personality. Spanning over 2,400 square feet, the floor plan was designed with everyday living in mind from the welcoming foyer to the cozy family room. The eat-in kitchen is ideal for casual weekday meals and busy mornings, while the adjoining formal dining room tucked behind a pocket door sets the stage for more special occasions. A main level bedroom offers flexibility as a guest room or home office with direct access to a full bathroom. Upstairs, the primary bedroom with ensuite bath, two additional bedrooms and a shared bathroom provides privacy and separation from the rest of the home. Added benefits that every homeowner appreciates include a fenced-in backyard with patio on over half an acre, two-car garage with extra storage, and ample cabinet, closet, and pantry space throughout. Rooted in one of Athens’ favorite neighborhoods, Cedar Creek has no HOA, covenants, or restrictions though residents may choose to join the Cedar Creek Civic Association to enjoy the neighborhood pool and community spaces. If this sounds like the home you’ve been waiting for, schedule an appointment to take a tour today.
The data relating to real estate on this web site comes in part from the Internet Data Exchange program of Hive MLS (HIVE), and is updated as of Sunday, March 15th, 2026 at 09:32:56 PM. All information is deemed reliable but not guaranteed and should be independently verified. All properties are subject to prior sale, change, or withdrawal. Neither listing broker(s) nor Corcoran Classic Living shall be responsible for any typographical errors, misinformation, or misprints, and shall be held totally harmless from any damages arising from reliance upon these data. © 2026 Hive MLS (HIVE). Data last updated: Sunday, March 15th, 2026 at 09:32:56 PM.
Data services provided by IDX Broker
| Price: | $408,000 |
| Address: | 170 Dunwoody Drive |
| City: | Athens |
| County: | Clarke |
| State: | Georgia |
| Zip Code: | 30605 |
| Subdivision: | Cedar Creek Acres |
| MLS: | CL341859 |
| Year Built: | 1972 |
| Acres: | 0.549 |
| Lot Square Feet: | 0.549 acres |
| Bedrooms: | 4 |
| Bathrooms: | 3 |











































